Escuela Urbana
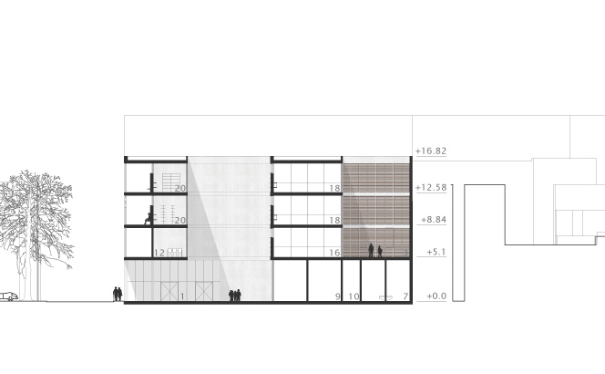
01 Haupteingang
07 Sanitäranlagen Schüler
09 Küche, Vorbereitung, Ausgabe, Rückgabe
10 Personalraum
12 Verwaltung
16 Fachklasse Naturwissenschaften
18 Stammklassen
20 Bibliothek
Schnitt 2
| ma4 | | Prof. Prof. h.c. H.Bühler | Entwerfen |
| | Prof. M.Schanné | Baukonstruktion | |
| | Masterthesis |
